Setari Cookie-uri

Planuri pentru case din lemn - II

IN ACEST ARTICOL:

Pentru a afla cat mai multe detalii legate de casele din lemn, va oferim o serie de planuri, descrieri si preturi pentru acestea.

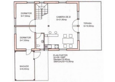
Casa de lemn Luiza - plan parter

Suprafata construita desfasurata :
- 149 mp, din care
- 116 mp casa,
- 10 mp magazie,
- 21 mp terasa descoperita,
- 2 mp balcon descoperit.
Termen de executie: 100 zile

Vezi si slide-ul urmator


Kudika
10 Iunie 2009
Echipa Kudika