Setari Cookie-uri

Casa Container

IN ACEST ARTICOL:

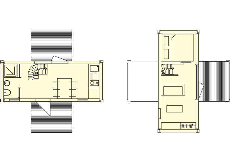
Ai trai intr-un container? Sistemul de locuinte alternative ConHouse aduce containerele traditionale la un alt nivel, avand destinatia clara pentru locuit si asigurand confortul necesar proprietarului. Astfel de constructii sunt mobile, ecologice, prezinta costuri reduse si se pot extinde in functie de necesitati.

Costuri reduse

Preturile mult mai scazute ale unor astfel de unitati de lucru sau de locuire le transforma intr-o concurenta deloc neglijabila pentru casele traditionale. Producatorii isi propun cresterea semnificativa a numarului proprietarilor de astfel de locuinte, acestia putand folosi banii economisiti in vederea extinderii spatiului de locuit sau pentru amenajarea interiorului.


Kudika
15 Decembrie 2008
Echipa Kudika
Iti place acest articol? Recomanda-l prietenilor:
Ti-a placut acest articol?

Aboneaza-te pe Kudika pentru a primi articole similare.