IN ACEST ARTICOL:
CASA DRAGOESCU
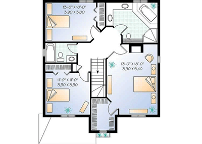
Plan etaj. Nivelul cuprinde: 3 dormitoare si 2 bai. TRANSVAL
Kudika
3 Decembrie 2007
Echipa Kudika
3 Decembrie 2007
Mai multe articole:
-
Maria CrisanKim Kardashian a stârnit isterie în online! Vedeta a lansat...
-
Raluca CărpătorÎn România unde 1 din 2 femei suferă violență domestică, violatorul...
-
Carmen Ioana OlteanuCea mai simplă cremă pentru tort - Ganache de ciocolată cât ai zice...
-
ClaraCONAF devine prima organizație patronală din România recunoscută ca...
-
Maria CrisanDecizie CNA privind Insula Iubirii. Antena 1, obligată să facă...
-
NoemiOPI te transformă în vedeta verii cu noua colecție Make ‘Em Jelly
-
Carmen Ioana OlteanuOPI te transformă în vedeta verii cu noua colecție Make ‘Em Jelly
S-ar putea sa-ti placa si:
-
50+ cele mai frumoase mesaje de încurajare pentru momentele grele...Sursa: 9am.ro
-
Uniunea Europeană introduce noi reglementări care să ajute...Sursa: futurebanking.ro
-
Sumă record cheltuită de utilizatorii OnlyFans în 2024. Câți bani...Sursa: wall-street.ro
-
Exercițiu de imaginație: cum ar putea arăta un București cu clădiri...Sursa: green.start-up.ro
-
Românca Alina Sabău, antreprenoare în fashion de lux, va deschide...Sursa: retail.ro